
以前よりご紹介してきた戸倉地区藤浜の防災集団移転促進事業。
(藤浜地区 前回のブログはこちら)

その造成工事が完了し、先日12月21日町内28の防集団地の中で最も早い竣工式が行われました。

復興事業推進課の方によると「同じ日に現場見学会もあるんですよ」とのこと、早速ご一緒させてもらいました。
国道398号からスロープを上ります。

(今年6月の様子)

(12月21日の様子)
法面には有機素材が被せられていました。
春には緑に覆われるそうです。


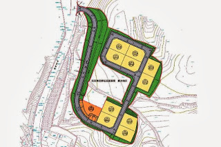
坂を上りきった奥は団地用地。



100坪が10戸。入居申込みは完了しています。
いずれも同地区の住まいを失い、再建を信じながら強いコミュニティを保ってきた方々です。
住まいの形はこれから決めるお宅が多いようです。
「駐車スペース3台分は要るべな」
「盛土の法面に面積を取られるのは惜しいけど、擁壁を作ると予算が…」
見学者の皆さん、悩む姿も嬉しげです。
この団地の海抜はおよそ40メートルとのこと。
国道側に目を向けると、その先の林野まで広く見渡すことができました。

予定地はこれから登記などの手続きを経て来春以降に建設開始の見込み。
「年末年始は、家族と一緒に新しい家を思い描いて過ごします。」
あの日から3回目のお正月を前に、町に光が射しこみました。
(日比谷)
