歌津 館浜地区 館浜団地(19戸)完成 『復』
| 完成日 | 平成27年1月30日 |
|---|---|
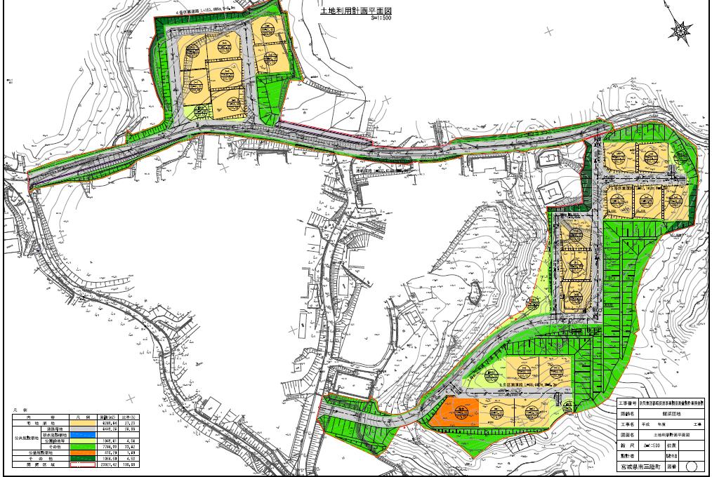
| 施工場所 | 南三陸町歌津字館浜地内外 |
| 面積 | 約2.3ヘクタール |
| 工期 | 平成25年11月16日 ~ 平成27年1月30日 |
| 施工業者 | 株式会社只野組 |
| 戸数 | 19戸 |
| 進捗状況 | 100% |
| リンク | 今後の住まいについて |
進捗状況

全体図

平面図
平成26年4月18日
平成26年6月26日

平成26年6月26日
平成26年8月18日
平成26年8月18日
平成26年11月14日
平成26年11月14日
平成27年1月14日
平成27年1月14日
平成27年2月6日
【完成】
100%